Fecha de publicación: 19-02-2025 | Fecha de actualización: 19-02-2025 | Autor: Mateusz Ciećwierz
Fecha de publicación: 19-02-2025 | Fecha de actualización: 19-02-2025 | Autor: Mateusz Ciećwierz
El diseño de interiores es un campo que requiere no solo creatividad, sino también habilidades técnicas y visuales. Los diseñadores de interiores utilizan una variedad de programas y aplicaciones para el diseño de interiores. En este artículo conocerás los más populares: SketchUp, ArchiCAD, 3ds Max, AutoCAD y Blender. Aprenderás para qué aplicaciones es mejor cada programa. También compararemos los precios y los tipos de licencias disponibles. Al final, te sugeriremos qué curso de la oferta de CG Wisdom sería una buena elección para comenzar a trabajar en el programa. Descubrirás que los programas de diseño de interiores difieren no solo en precio, sino también en capacidades técnicas. Algunos de ellos, como SketchUp y 3ds Max, colaboran con una biblioteca gratuita de modelos 3D. Mientras que otros, como ArchiCAD y Autocad, ofrecen herramientas avanzadas para el modelado BIM.

En el mercado hay muchos programas que pueden ayudar a los arquitectos y diseñadores de interiores. Algunos de los más populares son:
En este artículo analizaremos el uso de cada uno de estos programas. Compararemos sus precios, licencias disponibles y nivel de dificultad. Descubrirás cuál de ellos es el más adecuado para tu trabajo. Consideraremos cuál es el mejor programa para el diseño de interiores.
Diseñar interiores no se trata solo de estética, sino también de planificación precisa y comunicación efectiva con los clientes y contratistas. SketchUp es una de las herramientas más populares en esta industria, que, junto con LayOut, ofrece amplias posibilidades tanto en la creación de modelos 3D como en la documentación técnica. ¿Por qué vale la pena utilizarlos? A continuación, presentamos las ventajas clave.
SketchUp es conocido por su sencillez y su interfaz intuitiva, lo que lo hace fácil de aprender, incluso para personas que están comenzando en el diseño de interiores. En comparación con otros programas más complejos, SketchUp permite dominar rápidamente las funciones básicas y comenzar a crear modelos 3D prácticamente desde los primeros minutos de trabajo. Para los diseñadores de interiores que valoran la eficiencia y la flexibilidad, esto es una gran ventaja.
SketchUp permite crear rápidamente modelos tridimensionales de interiores, lo que permite a los diseñadores visualizar fácilmente ideas e implementar cambios en tiempo real. Ya sea sobre la disposición de los muebles, la adición de iluminación o la selección de materiales de acabado, SketchUp ofrece herramientas que facilitan la reproducción exacta del espacio. Esto permite experimentar fácilmente con diferentes variantes de arreglos, aumentando la creatividad y permitiendo lograr resultados satisfactorios más rápidamente.

Una de las mayores ventajas de SketchUp es el acceso a una gran biblioteca de modelos 3D listos para importar directamente al proyecto. 3D Warehouse, la base de datos de modelos, contiene miles de objetos listos, como muebles, decoraciones, iluminación o electrodomésticos, lo que acelera significativamente el proceso de diseño. Los diseñadores pueden elegir entre diferentes elementos, adaptándolos a sus necesidades, ahorrando tiempo y facilitando la visualización del proyecto.
La colaboración entre SketchUp y LayOut es una poderosa herramienta que permite convertir modelos tridimensionales en detallados dibujos técnicos, imprescindibles para la realización del proyecto. LayOut permite generar planos, secciones y vistas en 2D, que son fundamentales para la comunicación con contratistas y clientes. Gracias a esta herramienta, los diseñadores pueden crear fácilmente documentación que cumple con los requisitos de construcción y estéticos, y también agregar notas, dimensiones y descripciones, lo que aumenta la precisión de la información transmitida. Obtén más información sobre esta herramienta en nuestro artículo - ¿Qué es LayOut y para qué se utiliza?
SketchUp y LayOut permiten realizar cambios fácilmente en cualquier etapa del proyecto. Gracias a la integración dinámica entre estas herramientas, cada modificación en el modelo 3D se actualiza automáticamente en la documentación técnica. Esto es crucial cuando el cliente cambia de opinión o los requisitos del proyecto sufren modificaciones. Esta flexibilidad garantiza un trabajo eficiente, permitiendo a los diseñadores ajustar rápidamente el proyecto a nuevas pautas sin necesidad de comenzar desde cero.
Aunque SketchUp es conocido por su sencillez, también ofrece la posibilidad de crear visualizaciones realistas de interiores, especialmente en colaboración con renderizadores externos como V-Ray o Enscape. Gracias a esto, los diseñadores pueden crear imágenes fotorrealistas que convencen a los clientes sobre la visión del resultado final. La capacidad de presentar el interior con una calidad gráfica alta, teniendo en cuenta la iluminación, los materiales y los detalles, aumenta las posibilidades de aceptación del proyecto por parte del cliente.
Usar SketchUp y LayOut significa ahorrar tiempo y recursos. La intuición del programa, la amplia base de modelos listos y la facilidad para realizar cambios hacen que el proceso de diseño sea rápido y eficiente. Además, generar documentación técnica en LayOut es ágil, lo que minimiza el riesgo de cometer errores y acelera todo el proceso de realización del proyecto. Esta solución no solo ahorra tiempo, sino también dinero.
SketchUp es uno de los programas más populares del mercado, por lo que los diseñadores de interiores pueden contar con el apoyo de una gran comunidad de usuarios. El acceso a numerosos tutoriales, foros en línea y cursos virtuales hace que resolver problemas técnicos sea rápido y sencillo. Esto es especialmente importante para personas que recién comienzan a trabajar con este software y quieren dominar rápidamente sus funciones avanzadas.
Las suscripciones anuales de SketchUp en versión polaca varían según la licencia:
Como ves, los estudiantes de arquitectura y los alumnos pueden aprovechar una licencia especial mucho más económica. Por lo tanto, si es posible, aprovecha esta oportunidad y aprende programas que te serán útiles en el futuro. De lo contrario, comienza con la versión de prueba gratuita del programa.
Opinión del expertoPiotr KurpiewskiArchitekt, Grafik, Wykładowca PJATK w Warszawie
SketchUp es una herramienta versátil que se adapta perfectamente al diseño de interiores. Gracias a su interfaz intuitiva, es fácil de aprender incluso para principiantes, y su flexibilidad permite crear rápidamente modelos 3D precisos. Además, la amplia variedad de complementos disponibles y elementos predefinidos, como muebles o texturas, aceleran el trabajo y permiten crear visualizaciones detalladas. SketchUp también es compatible con el trabajo en equipo gracias a la fácil compartición de archivos y la compatibilidad con otros programas, lo que lo convierte en una excelente opción para diseñadores de interiores.
SketchUp y LayOut forman un dúo excelente para los diseñadores de interiores, que buscan herramientas intuitivas pero poderosas para crear modelos 3D y documentación técnica profesional. Gracias a la facilidad de uso, la amplia biblioteca de modelos y la flexibilidad en el trabajo en el proyecto, constituyen una solución ideal para personas que quieren llevar a cabo sus ideas de manera eficiente. Combinando las capacidades de visualización e integración con otras herramientas, SketchUp y LayOut ofrecen todo lo necesario para crear un interior moderno, funcional y estético.
Si quieres aprender a diseñar interiores en SketchUp, echa un vistazo a nuestro curso de SketchUp Pro: Capacitación básica para principiantes. Se trata de un curso de vídeo de 6 horas en el que aprenderás los conceptos básicos del diseño en SketchUp y adquirirás una sólida base para tu trabajo. Las habilidades de modelado son invaluables para crear visualizaciones fotorrealistas de interiores. Esto, a su vez, es lo que aprenderás en Curso de V-Ray 5 para SketchUp Pro. Si ya estás familiarizado con los conceptos básicos de SketchUp, elige un curso en el que aprenderás a diseñar habitaciones específicas. Recomendamos el curso de Sketchup + Vray 6 - Formación en visualización de interiores desde cero.
Archicad es un software avanzado para el diseño arquitectónico, desarrollado por Graphisoft.Es una de las principales herramientas utilizadas por arquitectos y diseñadores de interiores en todo el mundo, basada en la tecnología BIM (Modelado de Información de Edificios). Con Archicad, los usuarios pueden crear proyectos integrales de edificios e interiores, combinando funcionalidad técnica con avanzada visualización 3D. El programa permite no solo el diseño, sino también la coordinación de proyectos con otras disciplinas, la generación de presupuestos y la gestión precisa de datos de diseño.
Modelado BIM – enfoque integral del proyecto
Archicad se basa en la tecnología BIM (Modelado de Información de Edificios), lo que significa que cada interior diseñado en este programa no es solo un conjunto de líneas, formas o texturas, sino una representación digital del edificio real. Esto permite que cada elemento del proyecto tenga parámetros reales, lo que facilita la planificación precisa y evita errores. Los interiores pueden diseñarse de manera coherente con toda la estructura del edificio, lo que facilita la colaboración con arquitectos, ingenieros y contratistas.
Archicad permite una gestión eficiente de datos de diseño. Todos los elementos del proyecto, desde paredes y suelos hasta muebles, están interconectados. Cualquier cambio en una parte del proyecto se actualiza automáticamente en otras partes del modelo, lo que minimiza el riesgo de errores. Esto es especialmente importante en el diseño de interiores, donde los detalles son fundamentales. De esta manera, el arquitecto de interiores puede seguir fácilmente los cambios, gestionar materiales y colores, así como controlar diferentes variantes del proyecto.
Una de las mayores fortalezas de Archicad es la capacidad de crear avanzadas visualizaciones en 2D y 3D. Esto permite que los diseñadores generen rápidamente plantas, secciones y vistas en 3D, lo que facilita en gran medida la comunicación con el cliente. Las visualizaciones pueden renderizarse con alta calidad, lo que permite representar los interiores de manera realista, incluso antes de comenzar la construcción. La capacidad de crear animaciones y recorridos virtuales es una ventaja adicional que permite a los clientes comprender completamente el proyecto.
Archicad ofrece amplias bibliotecas de elementos predefinidos, como muebles, iluminación, equipamiento de baños y cocinas. Esto es una gran ventaja para los diseñadores de interiores, ya que les permite completar rápidamente el proyecto sin la necesidad de modelar cada detalle desde cero. Además, cada una de estas bibliotecas se puede modificar fácilmente, adaptando los elementos a necesidades específicas del proyecto. Esta función ahorra tiempo y aumenta la flexibilidad en el trabajo.
En el caso de proyectos más grandes, donde los interiores deben coordinarse con la estructura del edificio y las instalaciones técnicas, Archicad resulta ser una herramienta ideal. Gracias a la tecnología BIM, es posible una colaboración eficiente con ingenieros, arquitectos y otros especialistas que trabajan en el mismo proyecto. Archicad permite el intercambio fácil de archivos y la sincronización de datos con otros programas, como Revit, lo que elimina problemas relacionados con incompatibilidades de formatos.
Utilizar Archicad permite controlar los costos del proyecto en todo momento. Cada elemento del interior, desde los acabados hasta los muebles, puede tener costos específicos asignados, lo que permite generar rápidamente presupuestos. De esta manera, los diseñadores tienen un control total sobre el presupuesto y pueden adaptar rápidamente el proyecto a las necesidades financieras del cliente. Además, gracias a la automatización de muchos procesos, el tiempo de ejecución del proyecto se reduce significativamente.
Archicad ofrece integración con varias herramientas adicionales que facilitan el trabajo en proyectos de interiores. El programa colabora, entre otros, con Twinmotion, que permite crear visualizaciones fotorrealistas en tiempo real, lo que aumenta aún más la calidad de la presentación al cliente. Gracias a estas extensiones, también es posible crear rápidamente listas de materiales o simulaciones de iluminación, aspectos clave del diseño de interiores.
Archicad es una herramienta que ha sido desarrollada durante muchos años y cuenta con un gran apoyo de la comunidad de usuarios. El acceso a numerosos foros, tutoriales y guías hace que incluso un diseñador principiante pueda dominar rápidamente la herramienta. Además, las actualizaciones periódicas del programa garantizan que Archicad se adapte siempre a las últimas tendencias y tecnologías en la industria.
Según la versión, los precios de las licencias de ArchiCAD son los siguientes:
Los estudiantes pueden utilizar la versión gratuita de ArchiCAD con licencias renovables anualmente hasta la finalización de sus estudios. Obtén más información sobre esto en nuestro artículo - ArchiCAD - Gratuito - ¿Dónde descargar? Guía.
ArchiCAD es una herramienta versátil que funciona perfectamente en el diseño de interiores. Sus ventajas, como la tecnología BIM, las avanzadas herramientas de visualización, la eficiente colaboración con otros especialistas y la capacidad de controlar costos, lo convierten en uno de los programas más importantes para arquitectos de interiores. Gracias a ArchiCAD, el diseño de interiores se vuelve más preciso, eficiente y creativo, y los resultados finales son de la más alta calidad.
3ds Max es un programa profesional para gráficos y animaciones en 3D. Forma parte del paquete de Autodesk y, debido a su relativa complejidad, está destinado a personas dispuestas a dedicar más tiempo al aprendizaje. Arquitectos y diseñadores de interiores utilizan 3ds Max porque el programa permite crear proyectos complejos de interiores con atención al detalle. Los proyectos se acompañan de visualizaciones de alta calidad que facilitan la comunicación con el cliente. En las visualizaciones creadas con motores de renderizado V-Ray o Corona, puedes usar modelos de la amplia - biblioteca de modelos 3D Chaos Cosmos.

3ds Max es una de las herramientas más avanzadas para la creación de gráficos 3D, animaciones y visualizaciones, que ha sido popular entre los profesionales durante muchos años. Sin embargo, al igual que cualquier herramienta, tiene sus puntos fuertes y débiles que vale la pena tener en cuenta, especialmente en el contexto del diseño de interiores. En este artículo, discutiremos por qué vale la pena utilizar 3ds Max, así como mencionaremos las razones por las que no siempre será la mejor elección.
Una de las mayores ventajas de 3ds Max es la capacidad de crear visualizaciones fotorrealistas. Gracias a la integración con motores de renderizado como V-Ray o Corona Renderer, los diseñadores pueden generar imágenes de interiores de excepcional calidad, con una representación realista de materiales, iluminación y detalles. Esto es especialmente importante en proyectos donde las visualizaciones tienen un papel crucial en la presentación de conceptos a los clientes.
3ds Max ofrece herramientas potentes para el modelado tridimensional, que permiten la creación precisa de formas, tanto simples como complejas. Es una herramienta ideal para diseñar muebles, detalles arquitectónicos o elementos decorativos personalizados. El programa permite un control total sobre el proceso de modelado, lo que brinda amplias posibilidades creativas.
Una de las razones clave para utilizar 3ds Max en el diseño de interiores es su compatibilidad con los principales motores de renderizado, como V-Ray y Corona Renderer. Estas herramientas son ampliamente reconocidas como el estándar en la industria de la visualización 3D, ofreciendo efectos de renderizado extremadamente realistas. Gracias a la integración con 3ds Max, los diseñadores pueden controlar con precisión la iluminación, los materiales y el sombreado, obteniendo imágenes que reflejan fielmente la apariencia real de los interiores. Tanto V-Ray como Corona Renderer permiten lograr la mejor calidad fotorealista, lo que hace que las presentaciones de proyectos sean más convincentes y llamativas.
Gracias a su larga presencia en el mercado, 3ds Max cuenta con una amplia comunidad de usuarios y acceso a numerosos recursos educativos, como tutoriales, foros en línea y cursos.```html
Los diseñadores también pueden utilizar modelos 3D preexistentes, lo que acelera significativamente el proceso de visualización.
Aunque 3ds Max es una poderosa herramienta para modelar en 3D y visualización, no está diseñada para la creación de documentación técnica. El programa se enfoca únicamente en gráficos 3D y animación, lo que significa que no se pueden generar planos técnicos, secciones o proyecciones necesarias para la realización de proyectos de interiores. Por lo tanto, los diseñadores deben utilizar software adicional, como AutoCAD o ArchiCAD, para preparar la documentación completa del proyecto. Esto puede implicar la necesidad de adquirir y dominar varios programas diferentes, lo que aumenta los costos y el tiempo de trabajo.
Uno de los factores importantes que puede desalentar el uso de 3ds Max es su alto precio. El costo de la licencia del software es elevado, lo que puede ser problemático para diseñadores principiantes o pequeñas empresas. Para aquellos que recién comienzan su carrera en el diseño de interiores, existen alternativas más económicas, como SketchUp o el totalmente gratuito Blender, que pueden ser suficientes para proyectos más pequeños, especialmente si no se requieren funciones tan avanzadas.
Sin embargo, es importante mencionar la licencia muy favorable de 3ds Max Indie para freelancers, gracias a la cual el costo anual de uso de este software es solo de $320.
Dominar 3ds Max requiere tiempo y paciencia. El programa es complejo, y su interfaz y número de funciones disponibles pueden abrumar a los usuarios principiantes. Para las personas que recién comienzan a incursionar en el diseño 3D, aprender 3ds Max puede representar un desafío. Alternativas como SketchUp o pCon.planner ofrecen una interfaz más intuitiva, lo que las hace más fáciles de dominar.
Puedes adquirir acceso temporal a 3ds Max en varias variantes:
También puedes optar por la opción Flex, en la que adquieres tokens para pagar cada día de trabajo en el programa.
También recuerda que como nuevo usuario puedes aprovechar la versión de prueba gratuita.
3ds Max es una poderosa herramienta para crear visualizaciones fotorrealistas y modelar en 3D, que funciona excelentemente bien en el diseño de interiores. Sus ventajas, como la calidad de renderización, las capacidades de iluminación y materiales, así como la integración con otros programas, lo convierten en una excelente elección para diseñadores experimentados que requieren presentaciones de la más alta calidad. Sin embargo, el programa también tiene sus desventajas: falta de capacidad para crear documentación técnica, alto costo de las licencias estándar, pronunciada curva de aprendizaje, lo que hace que para muchos usuarios alternativas como SketchUp o Blender sean más adecuadas.
La decisión de elegir 3ds Max debe depender de las necesidades específicas del diseñador, su presupuesto y nivel de experiencia. En algunos casos, 3ds Max será insustituible, pero para otros, herramientas más flexibles y económicas pueden ser suficientes.
Aprender 3ds Max por tu cuenta puede ser una fuente de frustración y pérdida de tiempo. En lugar de abrirse camino a través de una interfaz no intuitiva, elige un curso de 3ds Max para principiantes desde cero. Además, aprenderás a diseñar y organizar espacios modernos en 3ds Max + Corona renderer - Cómo crear visualizaciones de interiores
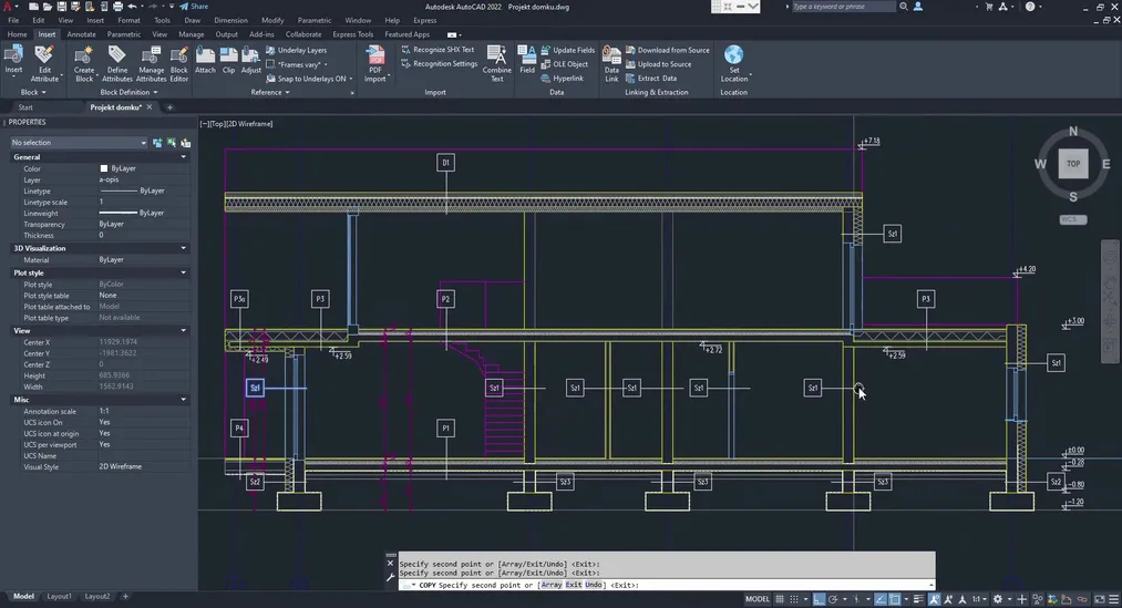
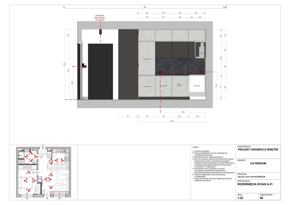
AutoCAD, una de las herramientas CAD (Diseño Asistido por Ordenador) más antiguas y reconocidas, ha sido utilizada durante años en arquitectura, ingeniería y diseño de interiores. Este programa es conocido por su precisión y flexibilidad, pero al igual que cualquier herramienta, tiene sus puntos fuertes y débiles. En el contexto del diseño de interiores, es importante considerar si AutoCAD satisface todas las necesidades de los diseñadores modernos. Aquí tienes un resumen de las razones por las que vale la pena y las razones por las que no vale la pena usar AutoCAD en esta industria.
Una de las mayores ventajas de AutoCAD es sus herramientas precisas para la creación de dibujos técnicos. El programa permite el diseño a escala, y cada línea, forma y objeto pueden ser dimensionados con precisión. Gracias a esto, los diseñadores de interiores pueden crear planos, proyecciones, secciones y otros documentos técnicos precisos que son necesarios para la realización del proyecto en el lugar. La precisión de AutoCAD también permite una coordinación fácil con otros especialistas, como ingenieros y arquitectos.
AutoCAD es un programa extremadamente versátil que puede adaptarse a diversas necesidades de diseño. Los diseñadores de interiores pueden utilizar una amplia gama de herramientas para crear dibujos en 2D, pero también modelar en 3D, lo que permite la visualización de espacios en tres dimensiones. El programa también ofrece la posibilidad de utilizar bloques (elementos preexistentes), como muebles, electrodomésticos o elementos arquitectónicos, lo que acelera el proceso de diseño.
AutoCAD es uno de los programas más populares en la industria del diseño, lo que significa que los archivos DWG son el estándar para el intercambio de documentación entre diseñadores, arquitectos, ingenieros y constructores. Esto facilita la colaboración en el proyecto y el intercambio de información entre los diferentes miembros del equipo. Además, AutoCAD se integra sin problemas con otros programas, como Revit, SketchUp o 3ds Max, lo que aumenta su versatilidad en el proceso de diseño.
El diseño de interiores no se limita solo a la visualización: un elemento clave es la creación de documentación técnica, que será la base para la realización del proyecto. AutoCAD es perfecto para la creación de planos, proyecciones, secciones y detalles técnicos, como instalaciones eléctricas, sanitarias o sistemas de ventilación. El programa ofrece herramientas avanzadas para el dimensionamiento, etiquetado y creación de tablas y listas, lo que lo convierte en una herramienta indispensable en la fase de preparación de la documentación ejecutiva.
AutoCAD ofrece muchas opciones de personalización, lo que permite adaptar el programa a las necesidades individuales del diseñador. Los usuarios pueden crear sus propias plantillas, bloques o atajos de teclado, lo que acelera el trabajo y aumenta la productividad. Además, gracias a funciones como scripts y herramientas de automatización, se pueden simplificar significativamente tareas repetitivas, como la creación de listas de materiales o dibujos detallados.
Aunque AutoCAD tiene funciones de modelado en 3D, no es su especialidad principal. En comparación con otros programas, como SketchUp, 3ds Max o Blender, AutoCAD ofrece capacidades limitadas para crear visualizaciones realistas de interiores. Este software es principalmente una herramienta para la creación de dibujos técnicos, no para visualizaciones fotorrealistas. Los diseñadores que desean presentar sus ideas a los clientes en forma visual atractiva pueden necesitar utilizar programas adicionales para renderizar y crear visualizaciones.
AutoCAD, debido a su funcionalidad avanzada, puede ser difícil de dominar, especialmente para personas que se inician en el diseño. La interfaz del programa es compleja, y aprender todas las herramientas disponibles requiere tiempo y práctica. Para los diseñadores de interiores que necesitan una herramienta para crear modelos 3D y visualizaciones simples de forma rápida y fácil, programas como SketchUp pueden resultar más amigables e intuitivos.
Cada vez más, el diseño de interiores recurre a la tecnología BIM (Modelado de Información para la Construcción), que permite gestionar datos e información sobre un edificio en un modelo digital único. AutoCAD, aunque es versátil, no es una herramienta BIM, lo que puede ser un problema en proyectos que requieren una estrecha colaboración con arquitectos o ingenieros que trabajan en programas BIM, como Revit. Falta de funciones avanzadas de BIM hace que AutoCAD pueda resultar insuficiente para proyectos complejos que requieran la integración de datos de diferentes sectores.
AutoCAD es una herramienta de propósito general utilizada en diversos campos, desde ingeniería mecánica hasta arquitectura. Esto significa que no ofrece funciones especializadas dedicadas exclusivamente al diseño de interiores, como lo hacen programas como pCon.planner o SketchUp, que están más adaptados a las especificidades de esta industria. AutoCAD no cuenta con bibliotecas prediseñadas de muebles, materiales de acabado o soluciones típicas para interiores, lo que significa que los diseñadores a menudo deben dedicar más tiempo a crear estos elementos desde cero.
Aunque AutoCAD es una excelente herramienta para crear dibujos técnicos precisos, su complejidad y carácter técnico pueden limitar la creatividad del diseñador. El programa requiere una planificación detallada y precisión, lo que dificulta experimentar rápidamente con diferentes conceptos de interiores en comparación con programas más orientados al diseño espacial, como SketchUp o Archicad.
El precio de Autocad depende del paquete y del período de suscripción que elijas:
Al igual que en el caso de 3ds Max, también puedes optar por Autocad Flex y adquirir tokens con los que pagar los días de uso del programa:
Como nuevo usuario, aprovecha la versión de prueba:
Autocad es una potente herramienta que se desempeña perfectamente en la creación de dibujos técnicos precisos y documentación de proyectos. Es un programa que ofrece versatilidad, personalización y precisión, lo que lo hace inestimable en el proceso de diseño de interiores. Sin embargo, sus limitaciones en visualización 3D, la falta de herramientas BIM y su carácter más técnico significan que no siempre será la elección ideal para todos los diseñadores. Para aquellos que necesitan una herramienta más creativa, fácil de usar y especializada en la visualización espacial, vale la pena considerar alternativas como SketchUp, Archicad u otros programas mejor adaptados a la creación de proyectos de interiores.
Si eres nuevo en el uso de Autocad, comienza con curso de Autocad 2023 desde cero para principiantes. Se trata de un extenso curso en línea en el que aprenderás las funciones más importantes del programa, esenciales para trabajar posteriormente. Aprenderás a diseñar interiores en Autocad, entre otros temas, en el curso de desarrollo de un proyecto de interior en una casa señorial..
Blender es un software gratuito y de código abierto para modelado 3D, renderizado, animación y efectos visuales, que está ganando cada vez más popularidad en la industria del diseño. Aunque se utiliza comúnmente en la producción de películas, juegos y gráficos 3D, muchas personas están comenzando a ver su potencial también en el diseño de interiores. Sin embargo, al igual que cualquier herramienta, Blender tiene sus ventajas y desventajas que vale la pena considerar antes de elegirla para trabajar en proyectos de interiores.
Una de las mayores ventajas de Blender es que es completamente gratuito. Este software está disponible bajo una licencia de código abierto, lo que significa que los diseñadores de interiores pueden utilizarlo sin incurrir en costos de licencia. Para diseñadores principiantes, freelancers y pequeñas empresas que desean minimizar los costos de software, Blender es una excelente solución. La naturaleza abierta de Blender también significa que la comunidad puede crear complementos y modificaciones, lo que hace que la herramienta esté en constante desarrollo y mejora.
Blender tiene integrado el motor de renderizado Cycles, que permite crear visualizaciones fotorrealistas. Con Cycles, es posible obtener efectos de iluminación, sombras, texturas y materiales muy realistas, lo que es fundamental en el diseño de interiores. También se ha introducido recientemente el motor de renderizado Eevee, que permite el renderizado en tiempo real. Esto significa que los diseñadores pueden ver rápidamente los resultados de sus acciones, acelerando considerablemente el proceso de trabajo en el proyecto.
Blender ofrece amplias capacidades de modelado 3D, lo que permite a los diseñadores de interiores crear tanto modelos simples como altamente complejos de muebles, elementos decorativos y arquitectura interior. Funciones como modificadores, herramientas de esculpido y la capacidad de editar mallas 3D con precisión hacen de Blender la herramienta ideal para diseñar elementos y detalles de interiores personalizados.
Blender cuenta con una gran comunidad de usuarios, lo que significa que los diseñadores pueden contar con un amplio apoyo en forma de tutoriales, foros, cursos en línea y recursos 3D listos para usar. Blender también ofrece acceso a amplias bibliotecas de modelos 3D que se pueden utilizar fácilmente en proyectos de diseño interior. Consulta el artículo - BlenderKit - qué es y cómo usarlo. Además, la comunidad regularmente proporciona nuevos complementos que aumentan la funcionalidad del software.
Blender ofrece herramientas avanzadas de animación que pueden utilizarse para crear recorridos virtuales de interiores diseñados. La capacidad de animar cámaras, objetos e iluminación permite crear presentaciones en forma de películas, lo que brinda a los clientes una mejor comprensión del espacio. Estas funciones son especialmente útiles en proyectos grandes o presentaciones para clientes exigentes.
Aunque Blender es gratuito, dominarlo requiere tiempo y esfuerzo. El programa tiene una interfaz compleja y muchas herramientas avanzadas, lo que puede resultar abrumador para personas principiantes. La empinada curva de aprendizaje puede desanimar a los diseñadores de interiores que necesitan un software más intuitivo para trabajar rápidamente. Para aquellos que no tienen experiencia previa en modelado 3D, esto puede ser una barrera significativa.
Aunque Blender es excelente para el modelado y la visualización, no ofrece herramientas avanzadas para la creación de documentación técnica, como planos, secciones, dibujos técnicos o listas de materiales. En el diseño de interiores, especialmente en la realización de proyectos más complejos, la documentación técnica es esencial para transmitir información detallada a los ejecutores. Por lo tanto, los diseñadores deben recurrir a otras herramientas para preparar toda la documentación del proyecto, lo que puede alargar el proceso de trabajo.
Aunque Blender se está utilizando cada vez más en diversas industrias creativas, todavía no es el estándar en el diseño de interiores. La mayoría de los arquitectos de interiores usan programas como AutoCAD, SketchUp o 3ds Max, lo que significa que los archivos de Blender pueden no ser totalmente compatibles con el software utilizado por otras personas que trabajan en el proyecto. Esto puede dificultar la colaboración con otros especialistas, como arquitectos o ingenieros, que utilizan herramientas más comunes.
Blender es un programa de diseño completamente gratuito. Por lo tanto, no tendrás que pagar nada por la licencia, incluso si creas proyectos comerciales con él. Además, la comunidad de usuarios de Blender son apasionados que contribuyen con diversas funciones al programa y lo mejoran constantemente.
Blender es una poderosa y gratuita herramienta para el modelado 3D y renderizado que puede ser utilizada con éxito para el diseño de interiores, especialmente en la creación de visualizaciones avanzadas. Sus principales ventajas incluyen la capacidad de trabajar en modo abierto, renderizado fotorrealista y una amplia gama de herramientas de modelado. Sin embargo, para diseñadores de interiores que necesitan una herramienta más fácil de aprender, con funciones dedicadas para el diseño de espacios y documentación técnica, Blender puede resultar menos adecuado. Vale la pena considerarlo como una herramienta de apoyo en el proceso de creación de visualizaciones, especialmente para aquellos que tienen el tiempo y la motivación para aprender sus funciones avanzadas.
Blender es una alternativa gratuita a las herramientas populares de diseño de interiores. Este programa basado en código abierto es ideal para tareas como el diseño y modelado 3D.
Elige Blender, un programa gratuito para el diseño y la decoración de interiores, cuando busques una herramienta versátil para el diseño y la creación de modelos 3D de interiores. Para aprender a preparar arreglos interiores en Blender, comienza con el curso Blender + Cycles — Visualizaciones de interiores desde cero.
En el artículo, hemos discutido varios programas recomendados para el diseño y la decoración de interiores, prestando atención a sus aplicaciones, precios y opciones de licencia. Las herramientas más populares para el diseño son SketchUp, ArchiCAD, 3ds Max, AutoCAD y Blender.
La mayoría de los programas ofrecen versiones de prueba gratuitas. Pruébalos antes de decidirte a comprar una licencia completa. Aprovecha nuestros cursos para arquitectos y diseñadores para aprender a diseñar interiores de casas o apartamentos por tu cuenta.