Fecha de publicación: 12-02-2025 | Fecha de actualización: 12-02-2025 | Autor: Adrian Szerszeń
Fecha de publicación: 12-02-2025 | Fecha de actualización: 12-02-2025 | Autor: Adrian Szerszeń
Para calcular el área en Autocad, utiliza la función "Medir geom" - dibuja el área señalando sus vértices.También puedes utilizar polilíneas - comienza dibujando una polilínea del contorno del área que deseas medir. Los pasos siguientes se detallarán en la parte posterior del artículo.

En casi cada proyecto de diseño, llega un momento en el que es necesario calcular algún tipo de área. En AutoCad, no es complicado hacerlo y, en general, se puede realizar de varias maneras. Lee el artículo y descubre cómo calcular el área en AutoCad.
Además de medir superficies, la función Measuregeom también permite realizar varios tipos de mediciones. Después de ejecutar dicha instrucción, aparecerán las siguientes opciones: "Distancia" (ang. "Distance"), "Radio" (ang. "Radius"), "Ángulo" (ang. "Angle"), "Volumen" (ang. "Volume") y lo más importante, "Área" (ang."Area"). Seleccionando esta opción, se puede pasar directamente a dibujar el área, señalando sus vértices (en este caso, es importante recordar que el modo de ajuste debe estar activado para los puntos característicos) o utilizar opciones adicionales de medición. Las opciones disponibles desde el símbolo de comando incluyen la indicación de un objeto cerrado (la forma más rápida de medir usando esta herramienta) y la adición o sustracción de áreas adicionales.
La segunda forma de calcular el área en AutoCad se basa en el uso de las propiedades de las polilíneas, que contienen información sobre el área que forman.
Cómo medir el área utilizando polilíneas
Para ello, es recomendable crear una capa separada y definirla de inmediato como no imprimible. Las líneas que dibujes en ella no existirán físicamente en el proyecto, sino que serán solo elementos auxiliares para el dibujo.
¿Por qué? La forma más sencilla de explicar el funcionamiento de este método es mediante el ejemplo de medir el área útil de una habitación. Primero, establece la capa para el área como actual y delinea la habitación de interés con la polilínea. Luego, debido a que mide el área útil, reduce el contorno obtenido por las capas de acabado de las paredes.
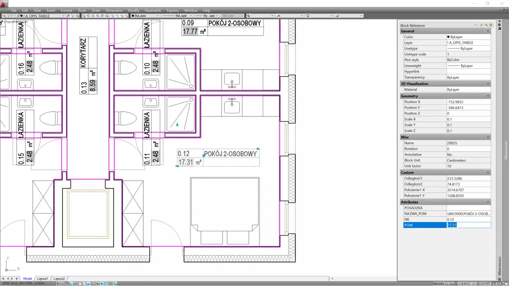
Para hacerlo, utiliza la paleta de propiedades. Puedes activarla usando el atajo de teclado "Ctrl+1". En la paleta, selecciona el contorno de la habitación y verifica el valor de la posición "Área" (ang. "Area") en la pestaña "Geometría" (ang. "Geometry").
Generalmente, este tipo de dibujos se hacen en centímetros, donde el área de las habitaciones se da en metros cuadrados. Supongamos que también es así en este caso. Si deseas obtener el resultado en metros cuadrados, el valor visible en la paleta de propiedades debe considerarse 10,000 veces menor, ya que 1 cm2= 0.0001 m2.
Puedes usar la calculadora integrada de AutoCad. Selecciona la posición de interés en la paleta de propiedades. Junto a su valor, aparecerá un icono para iniciar la calculadora. Es fácil de usar y no debería causar problemas a nadie.![]()
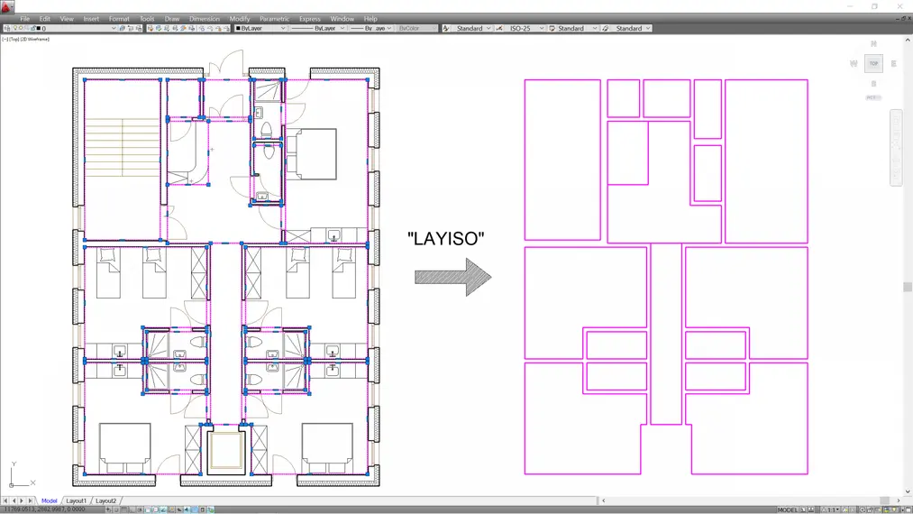
Para aislar la capa con los contornos en AutoCad, utiliza la función "Vista" (ang."Layiso"), que excluye de la vista todas las capas excepto aquellas sobre las que están seleccionados los objetos actuales. Por tanto, selecciona cualquier contorno y escribe el comando.
Después de aislar la capa, concéntrate en realizar el relleno, escribiendo la instrucción "Fill" (ang. "Hatch"). Puedes seleccionar cualquier patrón de relleno, pero por experiencia, no recomiendo el "Sólido", ya que es difícil de seleccionar después.
Si deseas saber cómo crear una etiqueta de habitación construida a partir de atributos y cómo crear listados en base a ella, avísame en los comentarios.
¡Espero que este material te haya sido útil! Te animo a explorar nuestra oferta de cursos en línea de AutoCad.
¡Saludos!