Fecha de publicación: 18-11-2025 | Fecha de actualización: 18-11-2025 | Autor: Mateusz Ciećwierz
Fecha de publicación: 18-11-2025 | Fecha de actualización: 18-11-2025 | Autor: Mateusz Ciećwierz

Si buscas una alternativa BIM completa a Archicad, Revit es la elección natural. Es la herramienta estrella de Autodesk dedicada al modelado de información de construcción, que permite crear proyectos arquitectónicos completos con documentación completa.
Revit se destaca por su enfoque inteligente del diseño: todos los elementos están interconectados, lo que significa que un cambio en el modelo 3D actualiza automáticamente vistas, secciones y tablas. Esto supone un gran ahorro de tiempo y minimiza errores en la documentación. El programa ofrece amplias bibliotecas de familias (families), que se pueden personalizar según tus necesidades, así como herramientas avanzadas para la colaboración en equipo.
Revit es especialmente valorado en proyectos grandes y equipos multidisciplinares. Permite coordinar el trabajo de arquitectos, ingenieros estructurales e instaladores en un mismo entorno, lo que mejora significativamente la calidad del proyecto y reduce los conflictos. Aunque la curva de aprendizaje puede ser pronunciada, los resultados compensan plenamente el esfuerzo.
En la plataforma cgwisdom.pl ofrecemos formación de Revit desde cero para principiantes, que te ayudará a dominar esta poderosa herramienta y aprovechar todas sus posibilidades.
EliteCAD es un programa que puede ser menos conocido en el mercado polaco, pero merece especial atención. El software suizo combina las capacidades de dibujo 2D, modelado 3D y elementos de la tecnología BIM. EliteCAD se distingue por una interfaz intuitiva y una curva de aprendizaje relativamente suave en comparación con otras herramientas BIM.
El programa ofrece herramientas arquitectónicas inteligentes, generación automática de vistas y secciones, así como amplias bibliotecas de elementos constructivos. EliteCAD funciona muy bien con la documentación del proyecto, permitiendo crear informes profesionales, presupuestos y especificaciones directamente desde el modelo.
Una de las mayores ventajas de EliteCAD es su estructura modular: puedes comprar solo los módulos que necesitas, lo que hace del programa una solución flexible para diferentes necesidades y presupuestos. El programa es especialmente popular entre arquitectos que diseñan edificios residenciales y pequeños edificios públicos. Lo importante es que EliteCAD sigue ofreciendo la opción de adquirir una licencia perpetua, lo cual, a diferencia de Archicad y muchos otros programas CAD/BIM, supone una gran ventaja para los usuarios que prefieren una compra única en lugar de una suscripción.
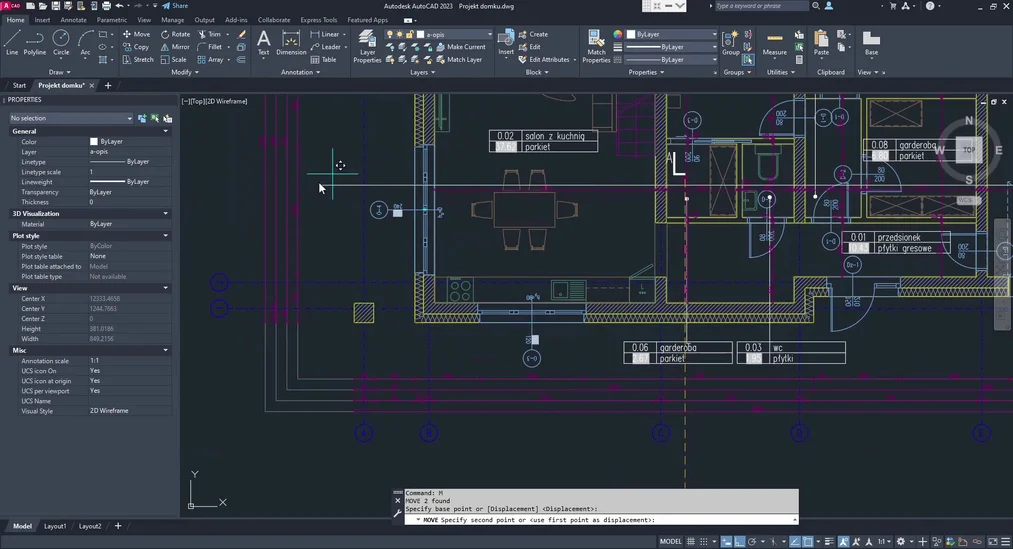
AutoCAD es un programa que no necesita presentación. Durante décadas ha sido la base del trabajo de muchos arquitectos en todo el mundo. Aunque no es una herramienta BIM pura, sus capacidades para crear dibujos técnicos 2D de gran precisión son prácticamente ilimitadas. AutoCAD funciona muy bien para la documentación del proyecto, los planos de ejecución y la colaboración con otras disciplinas de la construcción.
El programa también ofrece funciones de modelado 3D, lo que permite visualizar los proyectos y comprender mejor los espacios. Aunque no cuenta con herramientas BIM tan avanzadas como Archicad, AutoCAD Architecture (la versión dedicada a la arquitectura) incluye bibliotecas de objetos arquitectónicos, lo que acelera considerablemente el trabajo en proyectos de construcción. AutoCAD sigue siendo una solución excelente para quienes realizan proyectos de interiores o pequeños proyectos arquitectónicos, donde la funcionalidad BIM completa no es necesaria y la prioridad es la precisión del dibujo técnico.
La mayor ventaja de AutoCAD es su universalidad y popularidad: los archivos DWG son un estándar de la industria aceptado por prácticamente cualquier contratista, inversor o colaborador. Si trabajas en equipo o colaboras con distintas partes, AutoCAD garantiza un intercambio de datos fluido.
GstarCAD es un programa que a menudo se define como "AutoCAD, pero más barato". Y de hecho es una excelente alternativa para los usuarios que necesitan la funcionalidad de AutoCAD, pero no quieren o no pueden permitirse su precio. GstarCAD mantiene plena compatibilidad con el formato DWG, lo que significa intercambio de archivos sin problemas con usuarios de AutoCAD.
El programa ofrece un interfaz familiar y comandos similares a AutoCAD, lo que hace que la transición sea prácticamente indolora. GstarCAD también cuenta con herramientas integradas para trabajar con PDF, la posibilidad de importar y editar archivos de otros formatos y un funcionamiento estable incluso en ordenadores más antiguos. Es una gran opción para estudios de diseño más pequeños, autónomos o estudiantes.
Lo importante es que GstarCAD se desarrolla regularmente e introduce nuevas funciones, incluidos elementos que apoyan la metodología BIM. Aunque no es una herramienta BIM completa, para muchos usuarios ofrece un rango de posibilidades suficiente a un precio muy atractivo. Otra ventaja es que GstarCAD se ofrece en forma de licencia perpetua, y no de suscripción, lo que permite una compra única sin costes anuales.
Si te interesa esta solución, revisa nuestro curso de GstarCAD para principiantes, que te introducirá en el mundo de este económico software CAD.
Aunque SketchUp no es un reemplazo típico de Archicad en el contexto de diseño técnico, vale la pena mencionarlo como herramienta para modelado conceptual rápido y presentación de proyectos. SketchUp destaca por su interfaz extremadamente intuitiva y su corto tiempo de aprendizaje: la mayoría de los usuarios es capaz de crear los primeros modelos tras solo unas horas de uso del programa.
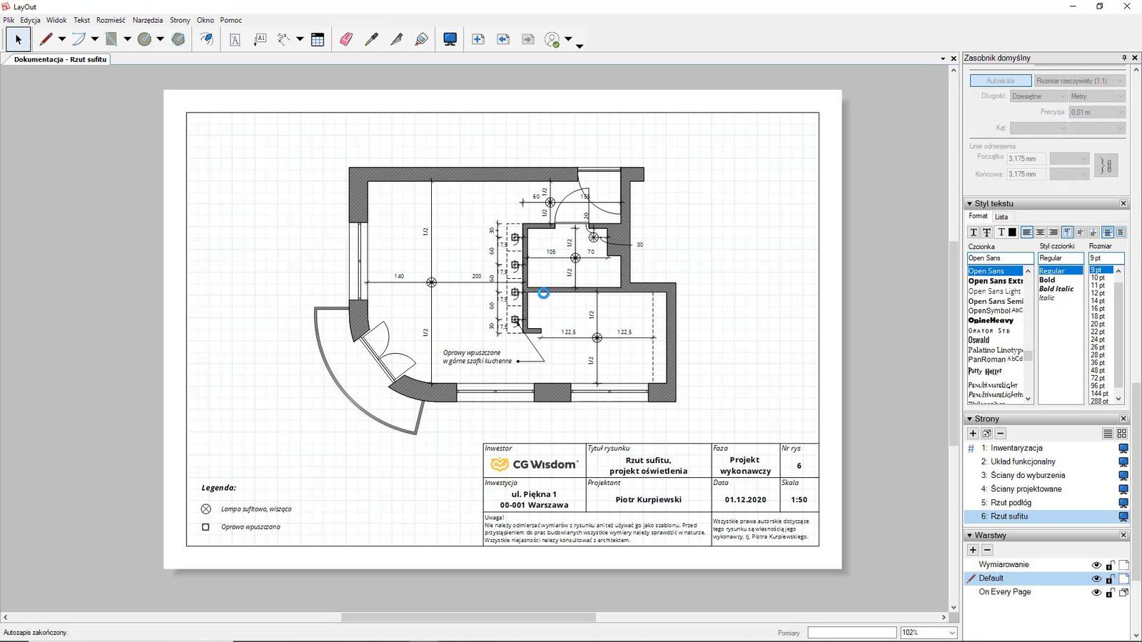
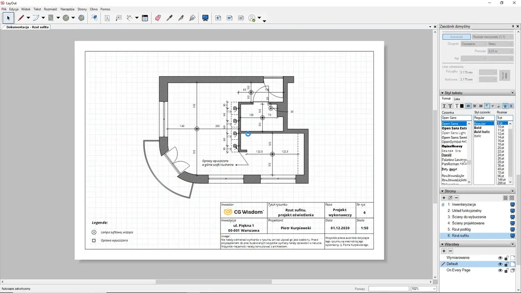
En combinación con el módulo Layout, SketchUp se convierte en una herramienta completa para la presentación de proyectos: puedes crear láminas profesionales con vistas, secciones, elevaciones y visualizaciones 3D. El programa funciona de manera excelente en las primeras etapas del diseño, en la comunicación con el cliente y en la prueba rápida de diferentes variantes de soluciones espaciales.
SketchUp cuenta con una enorme biblioteca gratuita 3D Warehouse, lo que acelera significativamente el trabajo en el proyecto. Además, hay disponibles numerosas extensiones que amplían la funcionalidad del programa, incluyendo herramientas de renderizado o exportación a otros formatos.
La elección de la alternativa a Archicad depende de tus necesidades específicas, presupuesto y estilo de trabajo. Si prefieres la clásica y comprobada universalidad, AutoCAD será una buena opción. Para proyectos que requieran un BIM completo, Revit es la mejor alternativa. GstarCAD será ideal para quienes buscan una solución económica, y EliteCAD para quienes valoran la intuición y la modularidad. SketchUp con Layout, por su parte, es una excelente herramienta para el diseño conceptual rápido y la presentación.
También vale la pena recordar que muchas oficinas de diseño utilizan una combinación de diferentes programas: por ejemplo, SketchUp para la fase conceptual, Revit para el diseño principal y AutoCAD para la documentación de ejecución. No es necesario limitarse a una sola herramienta; es recomendable conocer varias y aprovechar las fortalezas de cada una.