Fecha de publicación: 18-07-2025 | Fecha de actualización: 18-07-2025 | Autor: Mateusz Ciećwierz
Fecha de publicación: 18-07-2025 | Fecha de actualización: 18-07-2025 | Autor: Mateusz Ciećwierz
En el mundo de la arquitectura, la ingeniería y la construcción cada vez oímos más sobre la tecnología BIM. Sin embargo, muchas personas aún confunden los términos "Revit" y "BIM", utilizándolos de forma intercambiable. ¿Es correcto?En este artículo despejaremos todas las dudas: explicaremos qué es Revit, qué es BIM y cómo se relacionan estos dos conceptos.
También descubrirás por qué vale la pena conocer la diferencia y en qué situaciones una herramienta no puede sustituir a la otra.

Empecemos por lo básico. BIM (Building Information Modeling) es un método de diseño, ejecución y gestión de un edificio basado en un modelo digital 3D, que contiene no solo la geometría, sino también datos sobre las propiedades de los materiales, parámetros técnicos y el ciclo de vida del edificio.
Esto no es un software, sino un proceso y enfoque de diseño que permite la colaboración entre arquitectos, ingenieros y contratistas en un único entorno de datos. Si quieres saber más sobre el tema, consulta nuestro artículo: ¿Qué es BIM y por qué revoluciona la industria de la construcción?
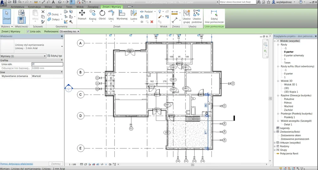
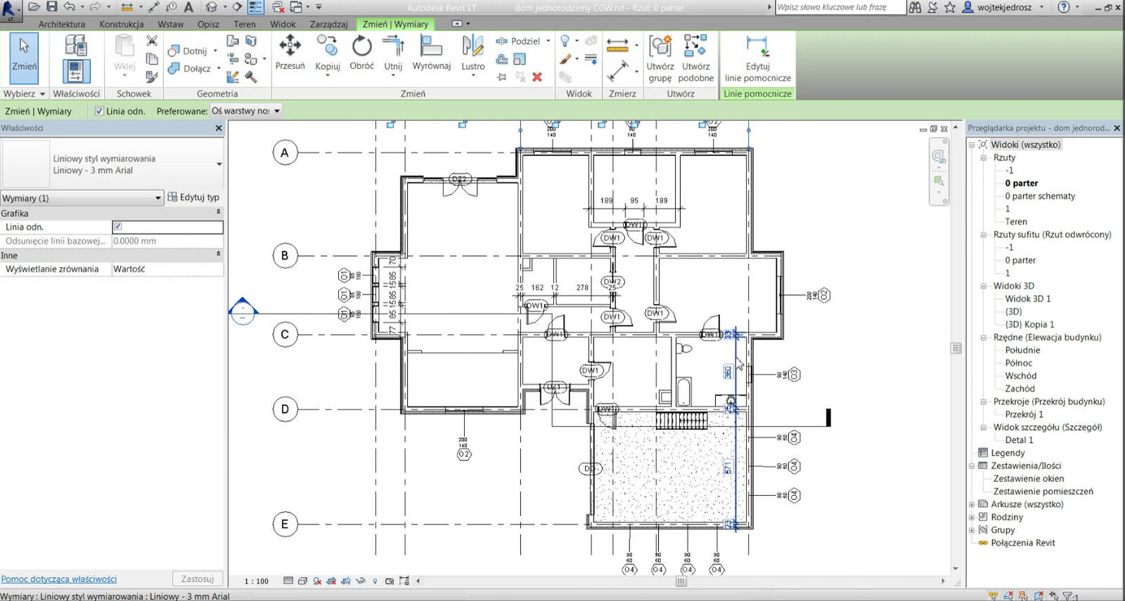
Revit es un software de Autodesk que permite crear proyectos arquitectónicos e ingenieriles conforme a la metodología BIM. Los usuarios pueden diseñar edificios en tres dimensiones, asignar parámetros a los objetos y generar la documentación del proyecto, todo en un solo archivo.
En otras palabras, Revit es una herramienta que respalda y facilita el trabajo en BIM, pero por sí misma no es BIM.
Aunque muchas personas usan los términos Revit y BIM indistintamente, en realidad se refieren a dos cosas diferentes. Revit es una herramienta de software específica: una aplicación para diseñar edificaciones en tecnología 3D, desarrollada por Autodesk. Permite crear modelos paramétricos arquitectónicos, estructurales e instalacionales. Gracias a su integración con una base de datos, cada elemento del proyecto contiene información técnica y de materiales detallada.
Por otro lado, BIM (Building Information Modeling) no es un programa, sino una metodología y proceso que abarca todo el ciclo de vida de un edificio: desde el concepto, el diseño y la construcción, hasta la gestión del inmueble. BIM se basa en la colaboración de diferentes disciplinas (arquitectónica, estructural e instalacional) sobre un modelo digital unificado que contiene toda la información necesaria sobre el proyecto.
Se puede comparar con la situación en la que Revit es la herramienta y BIM es la filosofía de trabajo. Usando Revit, podemos ejecutar un proyecto según los principios de BIM, pero el programa en sí no garantiza que realmente estemos trabajando con esta tecnología. Lo esencial es el enfoque en el modelado, el intercambio de datos, la estandarización y la comunicación entre los participantes del proyecto.
Por eso es tan importante no reducir BIM a "simplemente trabajar en Revit". El verdadero trabajo con la tecnología BIM también implica:
En resumen, Revit puede formar parte de BIM, pero por sí mismo no es BIM. Es como decir que saber usar Word nos convierte en escritores: la herramienta es necesaria, pero lo clave son las normas con las que la utilizamos.
DESCUBRE EL CURSO - FORMACIÓN BÁSICA DE REVIT PARA PRINCIPIANTES
Esta es una de las preguntas más frecuentes de quienes están iniciando su aventura con el modelado de información de edificios. La respuesta es: no, Revit no es la única ni la herramienta obligatoria para trabajar en BIM. Aunque es una de las soluciones más populares en el mercado, existen muchos otros programas que también respaldan la metodología BIM y son usados con éxito por arquitectos, ingenieros y diseñadores en todo el mundo.
Entre las soluciones alternativas se incluyen, entre otras:
También vale la pena mencionar las herramientas que apoyan el BIM en el ámbito de la coordinación y análisis de modelos, tales como:
La clave para trabajar en BIM no es un programa específico, sino seguir las normas y estándares de intercambio de información, tales como el formato IFC, los niveles de desarrollo (LOD) o el entorno CDE (Common Data Environment). Si un programa permite crear modelos informativos, exportar a formatos abiertos y colaborar entre disciplinas, se puede utilizar con éxito para proyectos BIM.
En conclusión: Revit es una herramienta muy potente, pero no la única. La elección del software debería depender de la especificidad del proyecto, las competencias del equipo y los requisitos del cliente. Más importante que la propia herramienta es entender la idea y la estructura del trabajo alineado con BIM.
CONSULTA LOS CURSOS ONLINE DE REVIT
Revit no es sinónimo de BIM, pero permite su implementación efectiva. Es una herramienta de diseño avanzada que, con el enfoque adecuado, se convierte en la base del trabajo con la tecnología BIM.
Si deseas desarrollar tu carrera como arquitecto, diseñador de interiores o ingeniero civil, vale la pena aprender Revit, pero no olvides las normas que respaldan el concepto de Building Information Modeling.