Publication date: 18-07-2025 | Update date: 18-07-2025 | Author: Mateusz Ciećwierz
Publication date: 18-07-2025 | Update date: 18-07-2025 | Author: Mateusz Ciećwierz
In the world of architecture, engineering, and construction, we increasingly hear about BIM technology. However, many people still confuse the terms “Revit” and “BIM,” using them interchangeably. Is that justified? In this article, we will dispel all doubts — we will explain what Revit is, what BIM is, and how these two concepts connect with each other.
You will also learn why it’s important to know the difference and in which situations one tool cannot replace the other.

Let's start with the basics. BIM (Building Information Modeling) is a method for designing, executing, and managing a building based on a 3D digital model that includes not only geometry but also data about material properties, technical parameters, and the object's lifecycle.
It's not software but a process and design approach that enables collaboration between architects, engineers, and contractors in a single data environment. If you want to learn more about this topic, check out our article - BIM – What it is and why it is revolutionizing the construction industry?
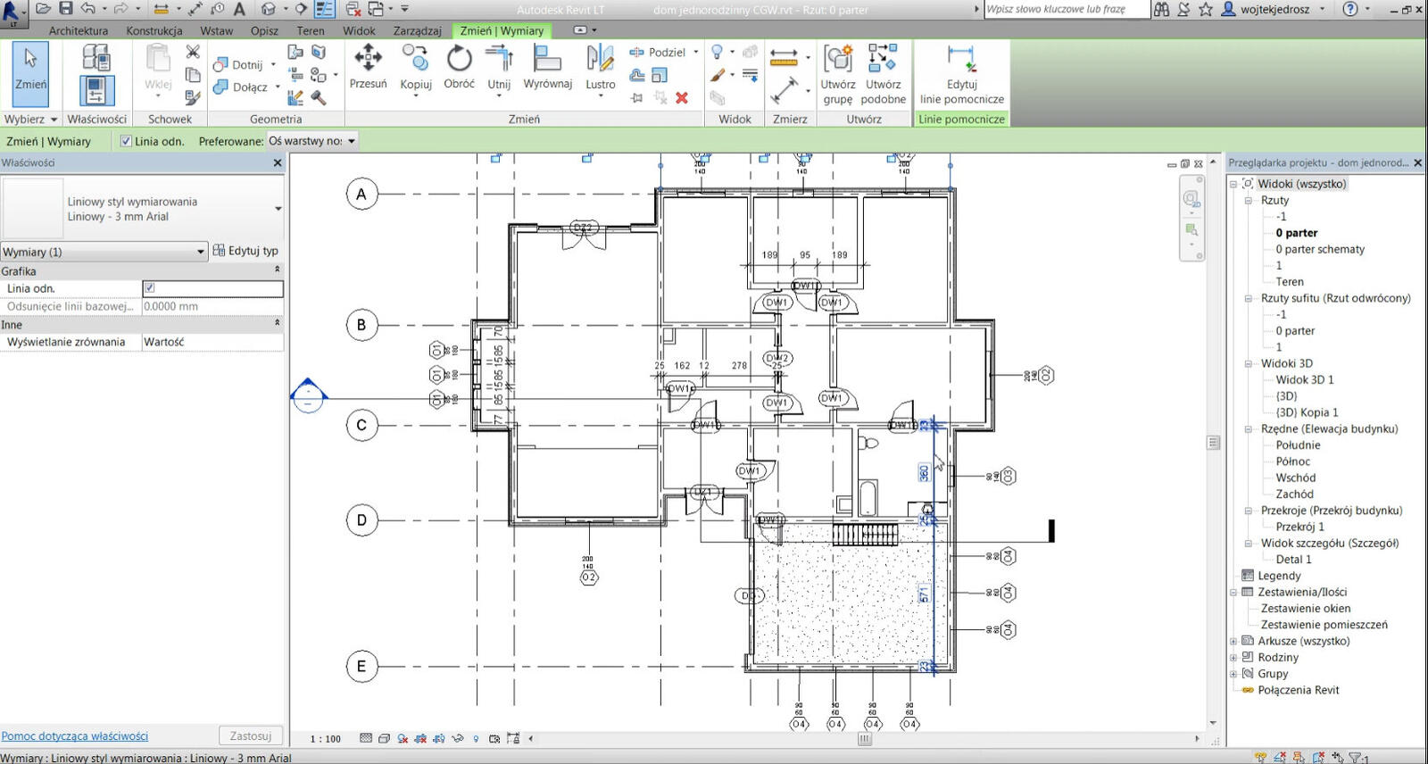
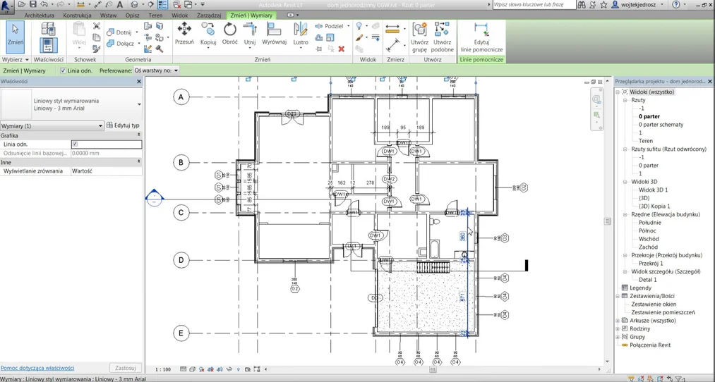
Revit is Autodesk's software that allows creating architectural and engineering designs following the BIM methodology. Users can design buildings in 3D, assign parameters to objects, and generate project documentation – all in one file.
In other words – Revit is a tool that supports and enables BIM work, but it is not BIM itself.
While many people use the names Revit and BIM interchangeably, they actually refer to two different things. Revit is a specific software tool – an application for designing buildings in 3D technology, developed by Autodesk. It enables the creation of parametric architectural, structural, and MEP models. Thanks to integration with a database, every project element contains detailed technical and material information.
On the other hand, BIM (Building Information Modeling) is not a program but a methodology and process covering the entire building lifecycle – from concept, through design and construction, to facility management. BIM is based on the collaboration of various disciplines (architectural, structural, MEP) using a single coherent digital model that contains all the necessary information about the object.
You can compare it to a situation where Revit is the tool, and BIM is the work philosophy. Using Revit, we can carry out a project according to BIM principles, but the program itself does not guarantee that we are actually working in this technology. The key is the approach to modeling, data sharing, standardization, and communication among project participants.
Therefore, it is crucial not to reduce BIM to “pure work in Revit”. True BIM work also involves:
In summary – Revit can be part of BIM, but it is not BIM itself. It's like saying that knowing Word makes us a writer – the tool is necessary, but the rules for using it are key.
CHECK THE COURSE – REVIT TRAINING FOR BEGINNERS FROM THE BASICS
This is one of the most frequently asked questions by people starting their adventure with building information modeling. The answer is: no, Revit is not the only nor mandatory tool for working in BIM. Although it is one of the most popular solutions on the market, there are many other programs that also support the BIM methodology and are successfully used by architects, engineers, and designers around the world.
Alternative solutions include, among others:
It is also worth mentioning tools supporting BIM in the area of model coordination and analysis, such as:
The key to working in BIM is not a specific program but adhering to information exchange standards and protocols, such as the IFC format, Levels of Development (LOD), or a CDE (Common Data Environment). If a given program allows you to create information models, export to open formats, and collaborate across disciplines, you can successfully carry out BIM projects in it.
In summary: Revit is a very powerful tool, but not the only one. The choice of software should depend on the project's specifics, the team's competencies, and the investor's requirements. More important than the tool itself is understanding the ideas and structure of BIM-compliant work.
Revit is not synonymous with BIM, but it enables its effective implementation. It is an advanced design tool that, with the right approach, becomes the foundation of work in BIM technology.
If you want to develop your career as an architect, interior designer, or structural engineer – it is worth learning Revit, but not forgetting the principles behind the Building Information Modeling concept.